HLW/HTL Braunau am Inn HLW/HTL Braunau am Inn HLW/HTL Braunau am Inn HLW/HTL Braunau am Inn HLW/HTL Braunau am Inn HLW/HTL Braunau am Inn HLW/HTL Braunau am Inn HLW/HTL Braunau am Inn HLW/HTL Braunau am Inn HLW/HTL Braunau am Inn HLW/HTL Braunau am Inn HLW/HTL Braunau am Inn HLW/HTL Braunau am Inn HLW/HTL Braunau am Inn

Erweiterung der HLW/HTL Braunau am Inn

Städtebauliche und architektonische Schwerpunkte

Die Anfänge des Schulzentrums Braunau am Inn gehen auf die Jahre 1975 mit Fertigstellung der HTL und 1980 mit der Eröffnung der HLW zurück. Aufgrund der wachsenden Schüleranzahl und den heutigen pädagogischen Ansprüchen, wurde von der Stadtgemeinde Braunau am Inn 2001 ein EU - weiter offener Architekturwettbewerb für die Planung der Erweiterung des Schulzentrums ausgeschrieben.

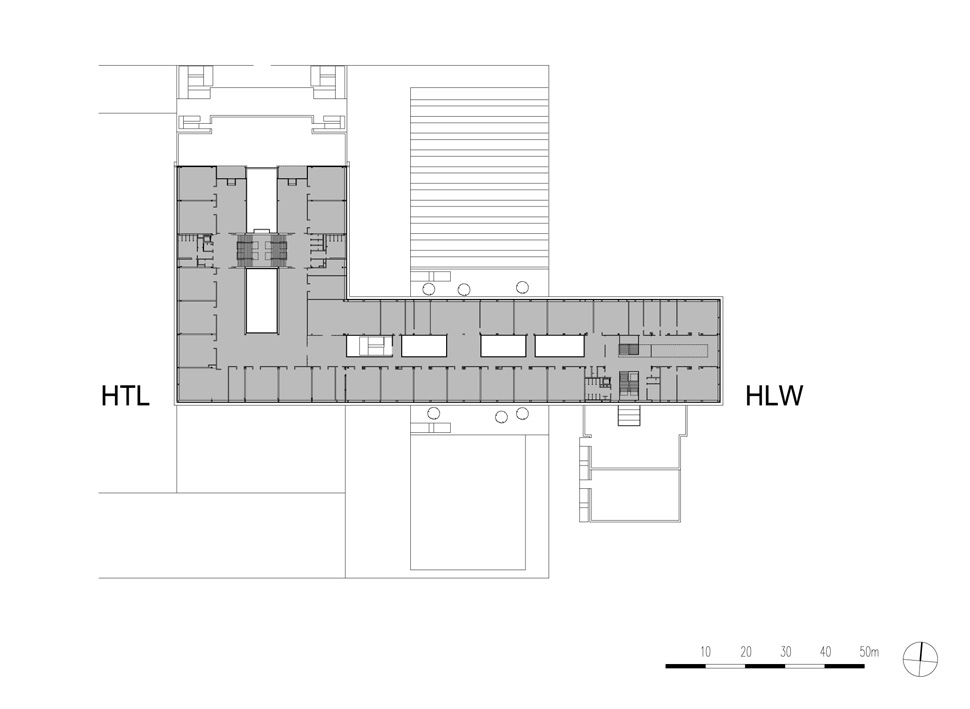
Der zusätzliche Raumbedarf der HLW und HTL von jeweils zehn Stammklassen, sowie Sonderunterrichtsräumen samt Nebenräumen, wurde in Form von Aufstockungen der beiden Schulen, verbunden mit einem brückenartigen Bauteil, umgesetzt. Zwischen HLW und HTL befindet sich der alte Werkstättentrakt. Da zum Zeitpunkt des Wettbewerbes die zukünftige Nutzung dieses zum Teil nicht mehr benötigten Bauteiles ungewiss war, erschien die aufgeständerte Überbauung hinsichtlich der Flexibilität als die optimale Lösung.

An der so neu geschaffenen Schnittstelle von HLW und HTL sind das gemeinsam genutzte Lern- und Informationszentrum samt Medienraum und ein großzügiger Buffet- und Pausenbereich als Kommunikationszone situiert.
Die großzügigen Baukörperdurchbrüche in der Mittelzone der Überbauung gewährleisten die erforderliche Belichtung des darunter liegenden Werkstättentraktes und der angrenzenden Unterrichtsräume. Den Pausenbereichen der Erweiterung sind Dachterrassen zugeordnet.

Im Zuge des Entwurfprozesses wurde entschieden unter der brückenartigen Überbauung einen Teil der alten Werkhalle durch einen neuen, zweigeschossigen Labortrakt zu ersetzen. Zwei an das Laborgebäude angrenzende, gärtnerisch ausgestaltete Atrien dienen der Belichtung der Laborräume und der räumlichen Zäsur zum verbleibenden großflächigen Werkhallentrakt.  

Um möglichst geringe Lasten auf das bestehende Gebäude aufzubringen wurde der Erweiterungsbau als Stahlkonstruktion ausgeführt. Diese Bauweise  ermöglichte Stützweiten bis 16m und die konstruktive Ausformung der städtebaulich signifikanten Auskragung über dem Eingang der HLW.

Die durchgehende Verglasung der Fassaden, die durch siebbedruckte Flächen strukturiert wird, ist einladend, offen und vermittelt eine moderne Geisteshaltung .
Durch die eigenständige und plastische Ausformung des neuen Baukörpers gelingt es, eine spannungsvolle Beziehung zum ursprünglichen Gebäudekomplex herzustellen.
Vom Bestand als Leichtbau formal losgelöst, erlangt das Erweiterungsbauwerk eine markante, schwebende Wirkung, die das gesamte Schulzentrum in seiner städtebaulichen Dimension aufwertet.

Video

Auftraggeber

Stadtgemeinde Braunau am Inn vertreten durch die Bundesimmobiliengesellschaft